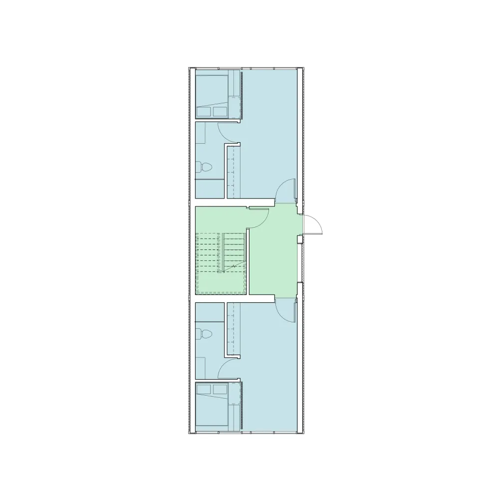
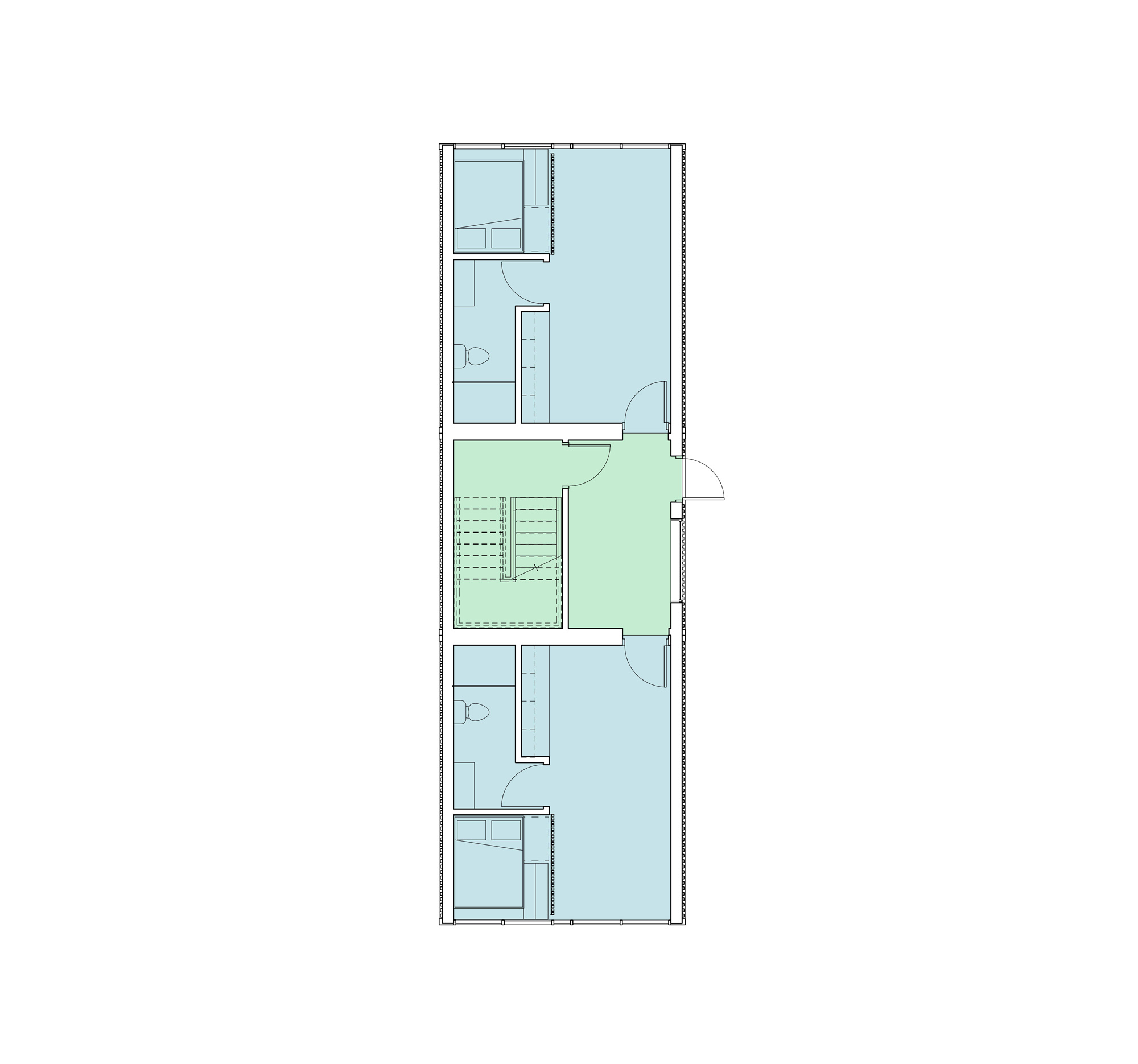
The system is composed of two primary modules:
- Living Module – Studio or one-bedroom units of approximately 400 square feet, each with a compact kitchen, bed area, and living space.
- Circulation Module – Containing a main entry and access stair, designed to connect and organize the living units.
Modules are stackable and can be configured in multiple arrangements to respond to diverse site conditions and varying density requirements. Exterior finishes may include metal panel, stucco, or a combination of the two, while operable windows provide natural ventilation. Each unit is climate-controlled with a small fan coil system.
The result is a flexible, scalable approach to urban housing that prioritizes economy without sacrificing livability.