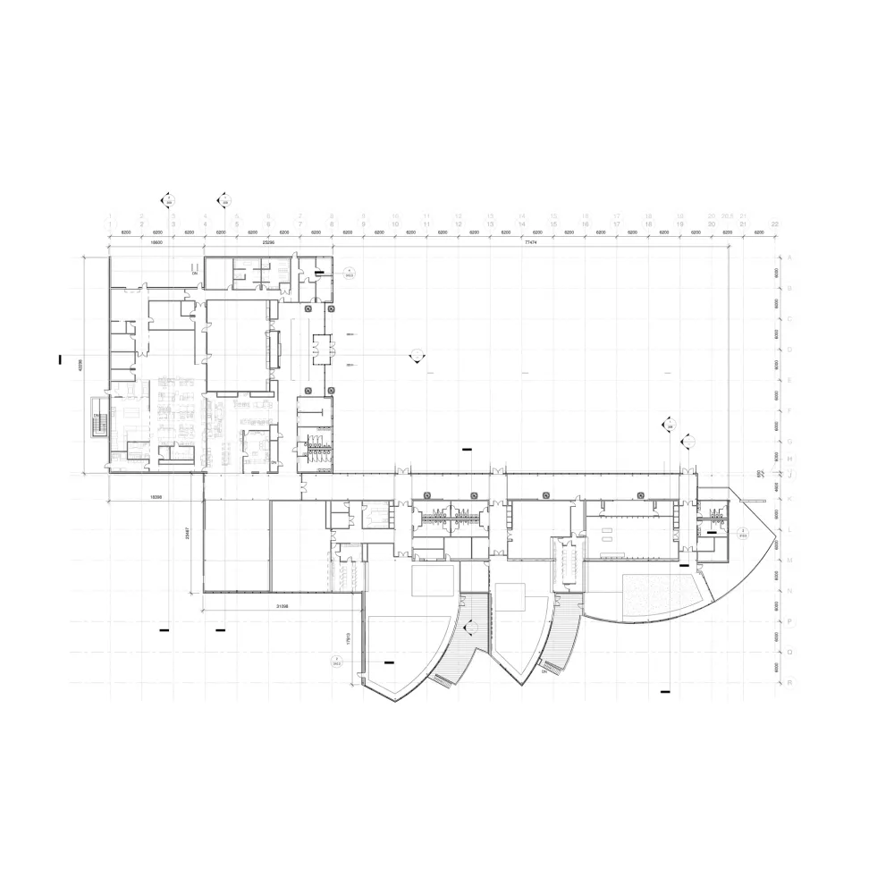
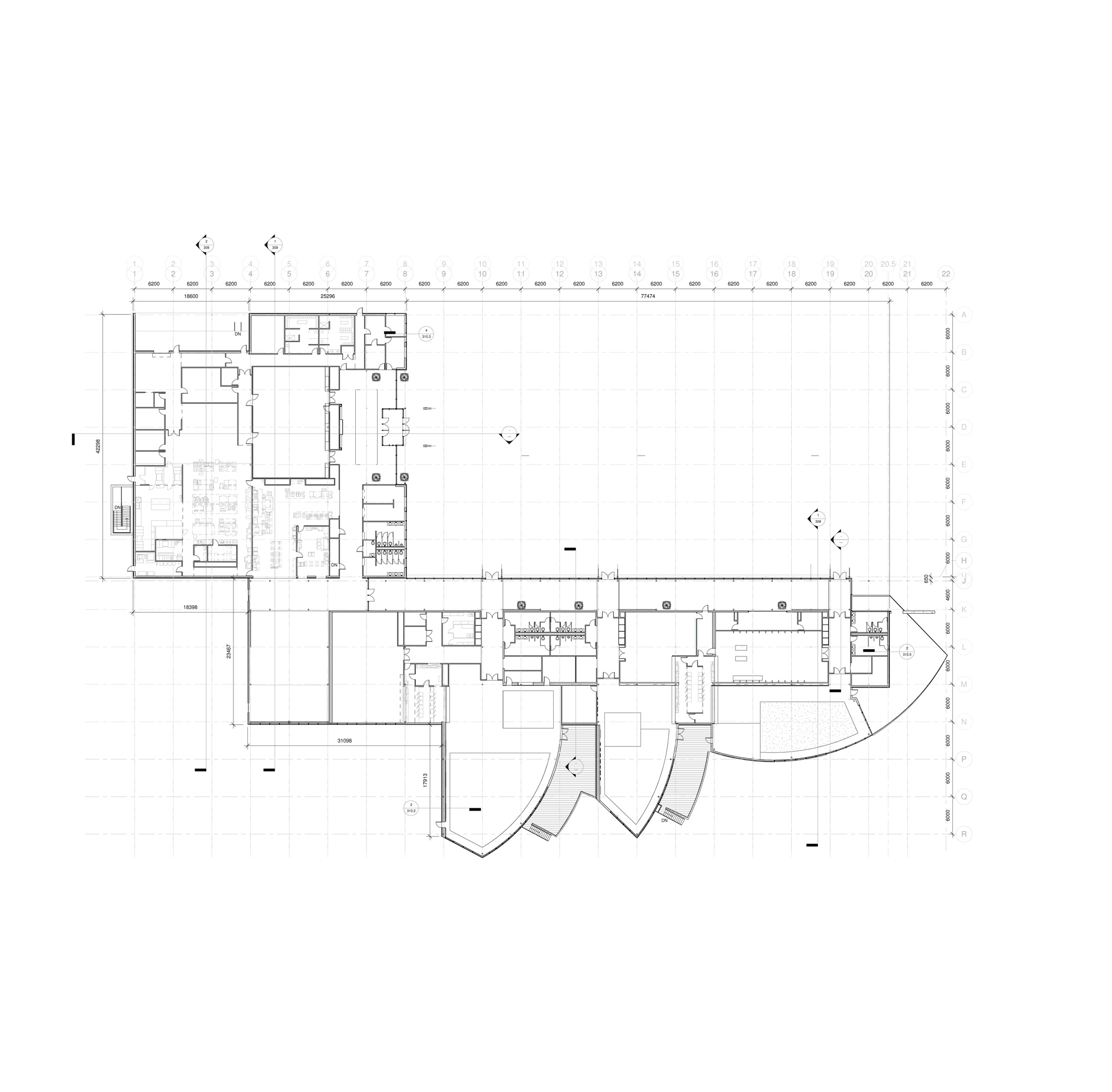
The building was organized around an open corridor—referred to as the “runway”—from which all lounges and key spaces were accessed. The layout pulled the building elements apart to take advantage of the mild coastal climate and to maximize views toward the mountains on the mainland.
Architecturally, the curved forms were inspired by the language of flight, projecting a sleek and streamlined image consistent with the iconography of the air force. The exterior was designed with a durable metal skin and expansive glazed areas, complemented by fins and sun-shading devices that balanced transparency with environmental performance.