Location: Winnipeg, Manitoba
Client:  NA
Budget: N/A
Area: 102 sm/unit
Category: Conceptual Study / Residential
Date Completed: 2020  

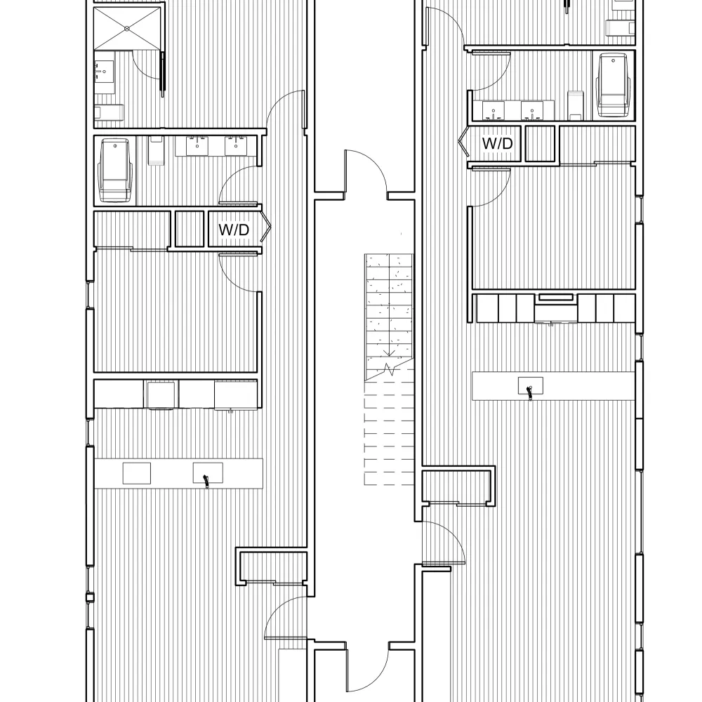
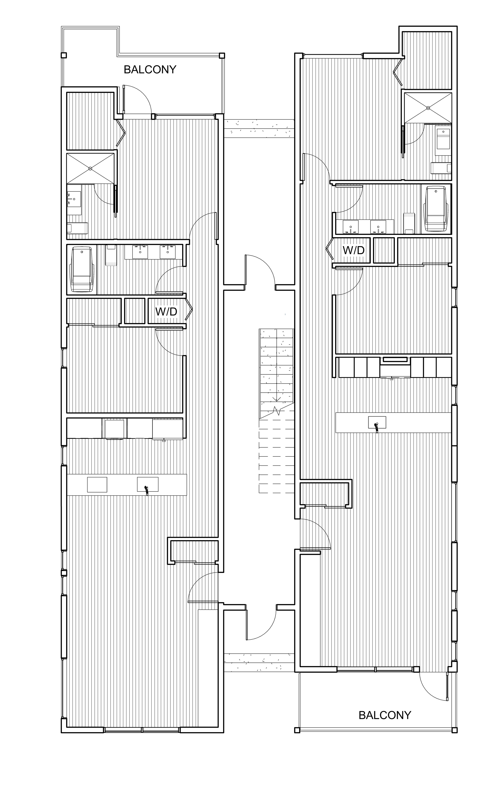
Three units have balconies off the living room and three units have them off the master bedroom. Plenty of large windows provide light and views in every room. The complex is built using wood construction which helps improve energy efficiency and exceeds the requirements of the Manitoba Energy code. All the units are sprinklered and come equipped with smoke and carbon monoxide detectors. Heating is provided by concealed natural gas fan coil units in the ceiling space. Heating is provided by concealed natural gas fan coil units in the ceiling space.