Location: Cold Lake, Alberta
Client:  Department of National Defense (DND)
Budget: N/A
Area: 5,000 sm
Category: Work with Other Firm (Architecture 49)
Date Completed: 2008 (Schematic Design)

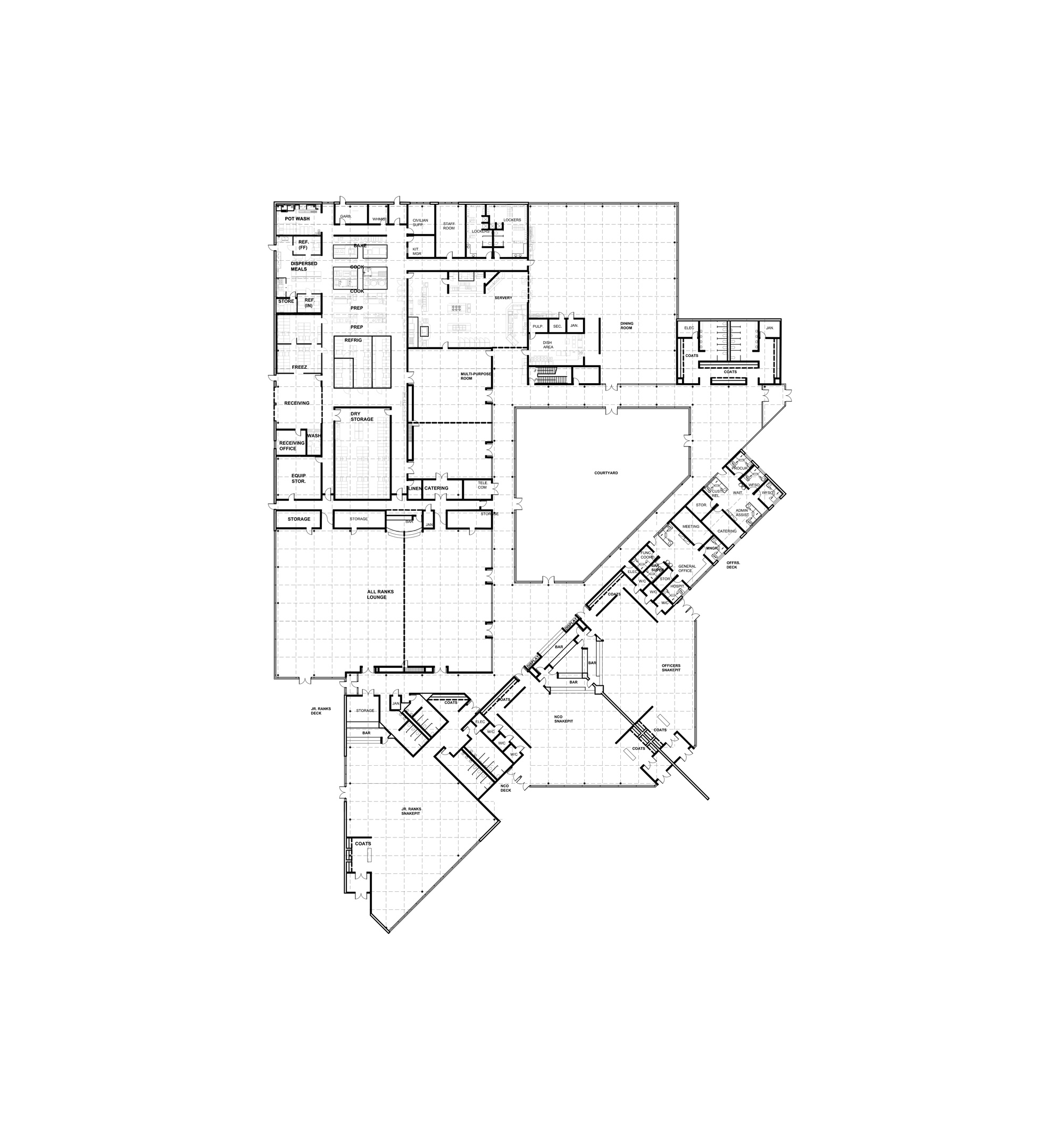
Richard Baronins was lead designer for this project while at Architecture 49. The proposed mess hall at 4 Wing was conceived to bring together the separate mess facilities for Officers, Non-Commissioned Officers, and Enlisted personnel within a single building. While each rank retained its own lounge, bar, and dedicated entrance, a shared dining room and centralized kitchen unified the program, streamlining food preparation and service.