Location: N/A
Client: NA
Budget: NA
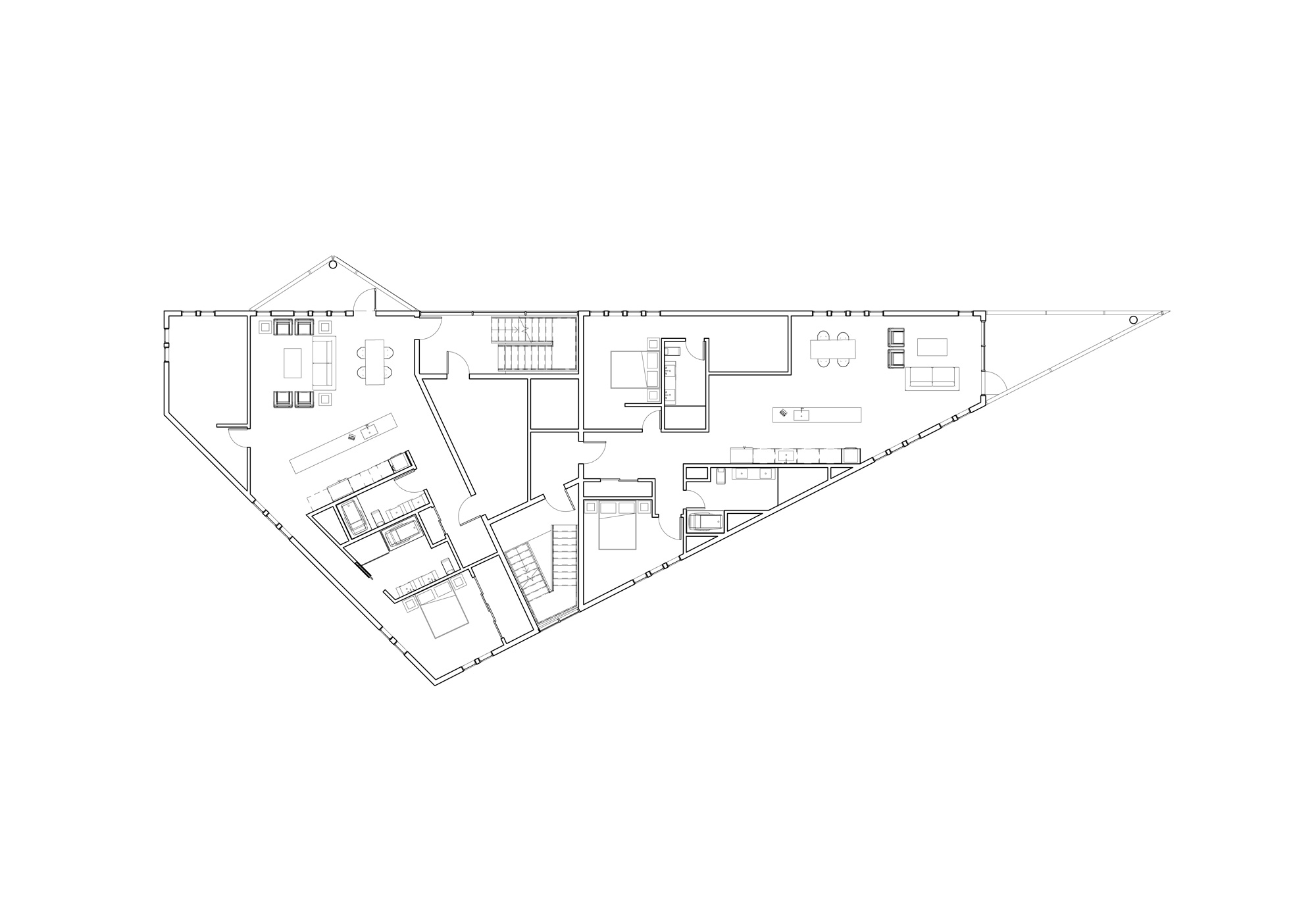
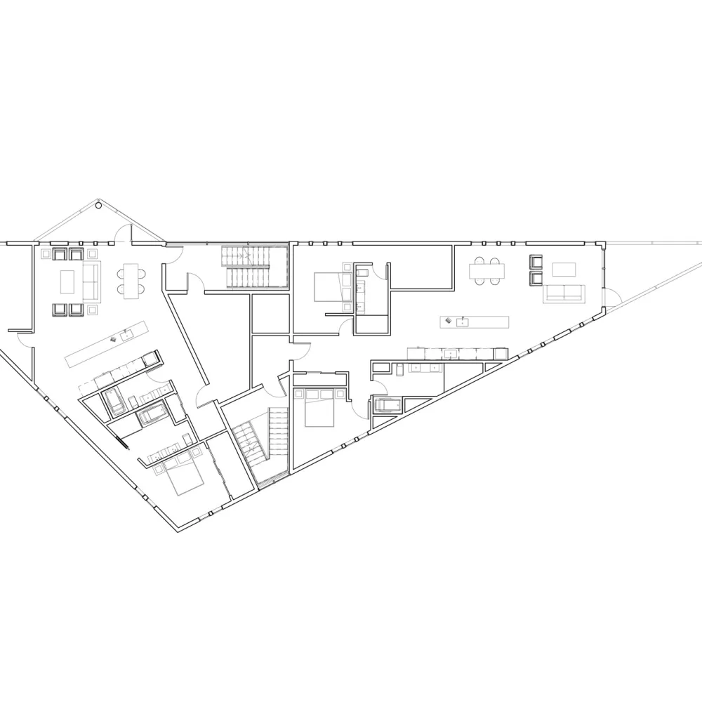
Area: 1,300 sm/unit 
Category: Conceptual Study / Residential
Date Completed: 2023

This project was planned for a 7,700-square-metre triangular site in St. Boniface. The proposal envisioned up to eight large residential units, each with two to three bedrooms. Parking would be accommodated on grade beneath the building, with the structure elevated on piers to lift the first residential level above ground.